Основная информация:

  • Город: Мурманск
  • Городской округ: Первомайский
  • Общая площадь: 92.0 м2
  • Площадь земельного участка: 10.0 сот.
  • Количество комнат: 3
  • Этажность: 2
  • Материал стен:
Цена: 6 900 000 руб.
  • Стоимость м²: 75 000 р.

Есть вопросы по объекту?

задать вопрос

Дополнительная информация:

Арт. 63462584

АКЦИЯ ДО НОВОГО ГОДА!


Предлагаем к покупке новый двухэтажный каркасный жилой дом в живописном месте города Мурманска (Первомайский район, улица Судоремонтная) на индивидуальном фундаменте (монолитплита 250 мм с двойным армированием).


В данном проекте предусмотрено 8 аналогичных двухэтажных индивидуальных жилых домов площадью 90,2-92,4 кв.м. на земельных участках площадью 10 соток.


Вид разрешенного использования земельного участка – ИЖС.

Жилые дома и земельные участки оформлены в собственность.


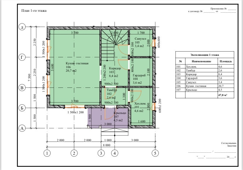
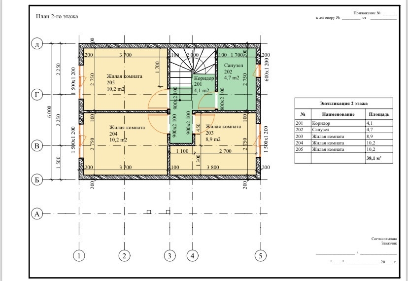
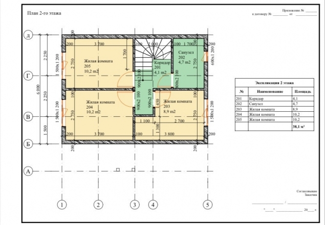
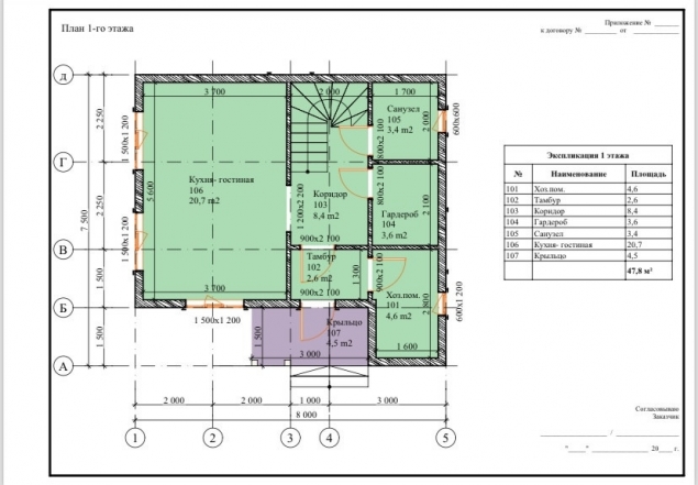
Год завершения строительства жилого дома – декабрь 2023 года, фундамент - шведская плита, общая площадь жилого дома 92 кв.м. без внутренней отделки, лестничный проем с отделкой, два этажа, первый этаж дома - чистовой пол, везде двухкамерные стеклопакеты «VEKA», два санузла, хоз. помещение, просторная кухня-гостиная, гардеробная, три изолированные комнаты расположены на втором этаже, подведено электричество, отопление индивидуальное, канализация - индивидуальная станция очистки "Эргобокс 5", крыша двускатная, металлочерепица Монтерей, отличные подъездные пути до участка, развитая инфраструктура, красивый живописный вид на залив из окна.


Рассмотрим любую форму расчетов (возможна рассрочка платежа) и профессионально поможем с оформлением всех необходимых документов по сделке.

Ваш агент по недвижимости:

Заказать звонок от агента:

  • Поделиться: